您當前所在位置:首頁 > LS螺旋輸送機
LS螺旋輸送機一直被廣泛用于國民經濟各部門,如建材、冶金、化工、電力、煤炭、機械、輕工、糧食及食品行業,適宜輸送粉狀、顆粒狀、小塊狀物料,如水泥、煤粉、糧食、化肥、灰渣、沙子、焦炭等。不宜輸送易變質、粘性大、易結塊的物料,LS螺旋輸送機工作環境溫度通常為-20~40℃,輸送物料的溫度一般為-20~80℃,LS螺旋輸送機適宜水平和小傾角布置,傾角以不超過15°為宜,如傾斜角度過大請選用GX系列螺旋輸送機,或與我公司技術部門聯系進行單獨設計。

LS型螺旋輸送機是利用旋轉的螺旋將被輸送的物料沿固定的機殼內推移而進行輸送工作,頭部及尾部軸承移至殼體外,吊軸承采用滑動軸承設有防塵密封裝置,軸瓦一般采用粉末冶金,輸送水泥采用毛氈軸瓦,吊軸和螺旋軸采用滑塊連接。

LS 系列螺旋輸送機承載能力大,運行安全可靠,設備適應性強,安裝與維修便捷,使用周期較長。整機結構緊湊,體積小巧,運轉轉速較高,可實現物料快速且均勻輸送。設備整體密封性良好,外殼選用無縫鋼管制作,各端部通過法蘭相互連接形成整體,結構剛性充足,能夠穩定完成輸送作業。

| 型號 | W | A | B | C | D | N | Q | Y | L | K | R | S | P | O | H | V | J | T | G | L |
| LS100 | 2500 | 100 | 180 | 146 | 10 | 4 | 180 | 190 | 90 | 112 | 180 | 112 | 60 | 178 | 120 | 160 | 14 | 163 |
1500 2000 2500 |
3500- 40000 |
| LS160 | 2500 | 160 | 240 | 206 | 10 | 4 | 200 | 190 | 112 | 150 | 200 | 150 | 60 | 270 | 120 | 160 | 14 | 190 | ||
| LS200 | 3000 | 200 | 300 | 256 | 14 | 8 | 225 | 190 | 112 | 180 | 225 | 180 | 60 | 308 | 160 | 200 | 14 | 212 |
40000- 80000 |
|
| LS250 | 3000 | 250 | 350 | 306 | 14 | 8 | 250 | 190 | 140 | 224 | 250 | 224 | 60 | 336 | 200 | 250 | 18 | 240 | 2500 | |
| LS315 | 3000 | 315 | 425 | 370 | 14 | 8 | 330 | 190 | 214 | 280 | 390 | 250 | 60 | 443 | 300 | 350 | 20 | 340 | ||
| LS400 | 3000 | 400 | 500 | 456 | 14 | 8 | 3580 | 190 | 224 | 355 | 390 | 280 | 60 | 533 | 320 | 400 | 24 | 384 | ||
| LS500 | 3000 | 500 | 600 | 556 | 14 | 8 | 400 | 190 | 280 | 400 | 400 | 340 | 80 | 662 | 400 | 500 | 24 | 440 |
2000 2500 3500 |
5500- 80000 |
| LS630 | 3000 | 630 | 730 | 686 | 14 | 8 | 450 | 190 | 355 | 500 | 450 | 420 | 80 | 763 | 500 | 630 | 24 | 555 | ||
| LS800 | 3000 | 800 | 920 | 868 | 18 | 16 | 550 | 340 | 450 | 630 | 550 | 520 | 80 | 970 | 632 | 800 | 30 | 650 | 6000-60000 | |
| LS1000 | 3000 | 1000 | 1120 | 1068 | 18 | 16 | 650 | 360 | 560 | 710 | 650 | 630 | 80 | 1190 | 710 | 1000 | 30 | 760 | 3500 | |
| LS1250 | 3000 | 1250 | 1370 | 1318 | 18 | 16 | 800 | 380 | 710 | 800 | 800 | 760 | 80 | 1440 | 800 | 1250 | 30 | 910 |
| 100 | 160 | 200 | 250 | 315 | 400 | 500 | 630 | 800 | 1000 | 1250 | |
| LS型 | |||||||||||
| GX型 | 200 | 250 | 300 | 400 | 500 | ||||||
| 螺旋直徑(mm) | 100 | 160 | 200 | 250 | 315 | 400 | 500 | 630 | 800 | 1000 | 1250 |
| 螺距(mm) | 100 | 160 | 200 | 250 | 315 | 355 | 400 | 450 | 500 | 560 | 630 |
| 轉速(r/min) | 140 | 120 | 90 | 90 | 75 | 75 | 60 | 60 | 45 | 35 | 30 |
| 輸送量QΦ=0.33 (m3/h) | 2.2 | 7.6 | 11 | 22 | 36.4 | 66.1 | 93.1 | 160 | 223 | 304 | 458 |
| 功率Pd 1=10m(KW) | 1.1 | 1.5 | 2.2 | 2.4 | 3.2 | 5.1 | 4.1 | 8.6 | 12 | 16 | 24.4 |
| 功率Pd 1=30m(KW) | 1.6 | 2.8 | 3.2 | 5.3 | 8.4 | 11 | 15.3 | 25.9 | 36 | 48 | 73.3 |
| 轉速(r/min) | 120 | 90 | 75 | 75 | 60 | 60 | 45 | 45 | 35 | 30 | 20 |
| 輸送量QΦ=0.33 (m3/h) | 1.9 | 5.7 | 18 | 18 | 29.1 | 52.9 | 69.8 | 125 | 174 | 261 | 305 |
| 功率Pd 1=10m(KW) | 1.0 | 1.3 | 2.1 | 2.1 | 2.9 | 4.1 | 4.7 | 6.8 | 9.4 | 14.1 | 16.5 |
| 功率Pd 1=30m(KW) | 1.5 | 2.3 | 4.5 | 4.5 | 7 | 8.9 | 11.6 | 20.4 | 28.3 | 42.2 | 49.5 |
| 轉速(r/min) | 90 | 75 | 60 | 60 | 45 | 45 | 35 | 35 | 30 | 20 | 16 |
| 輸送量QΦ=0.33 (m3/h) | 1.4 | 4.8 | 15 | 15 | 21.8 | 39.6 | 54.3 | 97 | 149 | 174 | 244 |
| 功率Pd 1=10m(KW) | 0.9 | 1.2 | 1.9 | 1.9 | 2.5 | 3.4 | 4.3 | 5.4 | 8.1 | 9.5 | 13.3 |
| 功率Pd 1=30m(KW) | 1.2 | 2.2 | 3.8 | 3.8 | 5.4 | 6.8 | 9.2 | 16 | 24.4 | 28.6 | 39.9 |
| 轉速(r/min) | 75 | 60 | 45 | 45 | 35 | 35 | 30 | 30 | 20 | 16 | 13 |
| 輸送量QΦ=0.33 (m3/h) | 1.2 | 3.8 | 11 | 11 | 17 | 31.7 | 46.5 | 73.0 | 99.3 | 139 | 199 |
| 功率Pd 1=10m(KW) | 0.75 | 1.1 | 1.6 | 1.6 | 2.1 | 3.1 | 3.7 | 4.6 | 5.7 | 7.7 | 11 |
| 功率Pd 1=30m(KW) | 1.1 | 1.8 | 3.4 | 3.4 | 4.4 | 5.6 | 8 | 14 | 16.7 | 23.2 | 33 |
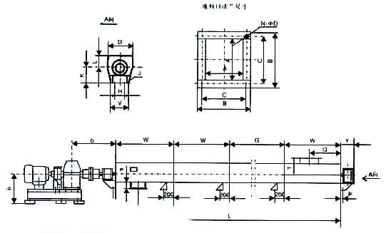
一臺螺旋輸送機通常由螺旋機本體、進出裝置、驅動裝置三大部分組成。

螺旋機本體由頭節、中間節、尾節三種組成。一般情況下,出廠總裝時將中間節按長度長短依次排列,長的中間節靠近頭節,相同長度的中間節則挨在一起,如果有特殊要求,則在訂貨時給出排列順序。
在頭節內裝有支推軸承承受軸向力,在中間節和尾節內裝有用軸承支承螺旋軸,此外,在尾節內還裝有可軸向移動的徑向軸承以補償螺旋軸長度的誤差和適應溫度的變化。螺旋面的形式有實體螺旋(S制法)和帶式螺旋(D制法)兩種。各螺旋軸之間采用法蘭式聯接,保證了聯接軸的互換性,便于維修。
機蓋為瓦片式并用蓋扣夾緊在機殼上,若需改進密封性能,用戶可自行在機蓋與機殼間加防水粗帆布。
進、出料裝置有進料口,方型出料口,手推式出料口,齒條式出料口四種。由用戶在使用現場在機體上開口焊接。布置進出料口位置時應注意保證料口至端部的距離,同時避免料口與吊軸承加油杯、機殼聯接法蘭、底座等相碰。
驅動裝置有ZQ系列減速器+Y系列電動機,YTC齒輪減速電機兩種。

LS型螺旋輸送機結構新穎,技術指標先進,頭部、尾部軸承移至殼外,中間吊軸承采用滾動,滑動可以互換的兩種結構,均設防塵密封裝置,出料端設有清掃裝置,整機噪聲低、適應性強,操作維修方便,進出料口位置布置靈活。
新鄉大漢生產的螺旋輸送機,廣泛應用于化工、建材、糧油、飼料、食品、冶金、礦山、塑料、醫藥等行業;適用于水平或小于20度傾角,輸送粉狀、粒狀和小塊狀物料,如水泥、煤粉、糧食、化肥、灰渣、砂子等,物料溫度200度以下。
LS 螺旋輸送機的價格通常在4200-9800元不等。機器的價格跟機器的材質、物料的特性、機器的長度、機器的管徑等因素有關。普通碳鋼材質的小型設備4100元左右就可以入手,管徑更大、輸送距離更長的機型,價格會逐步上升到10000元左右。輸送粉煤灰、礦粉等易磨損物料時,葉片與槽體做耐磨處理會讓成本有所增加,選用不銹鋼材質應對有腐蝕性的物料,整體支出也會隨之提高。具體根據輸送量等需求進行選擇適合的型號然后進行價格選擇。